Smart Imobiliare utilizează fişiere de tip cookie pentru a personaliza și îmbunătăți experiența ta pe Website-ul nostru. Înainte de a continua navigarea pe Website-ul nostru te rugăm să aloci timpul necesar pentru a citi și înțelege conținutul Politicii de Cookie. Prin continuarea navigării pe Website-ul nostru confirmi acceptarea utilizării fişierelor de tip cookie conform Politicii de Cookie.

Deventer II

Sibiu, zona Tineretului

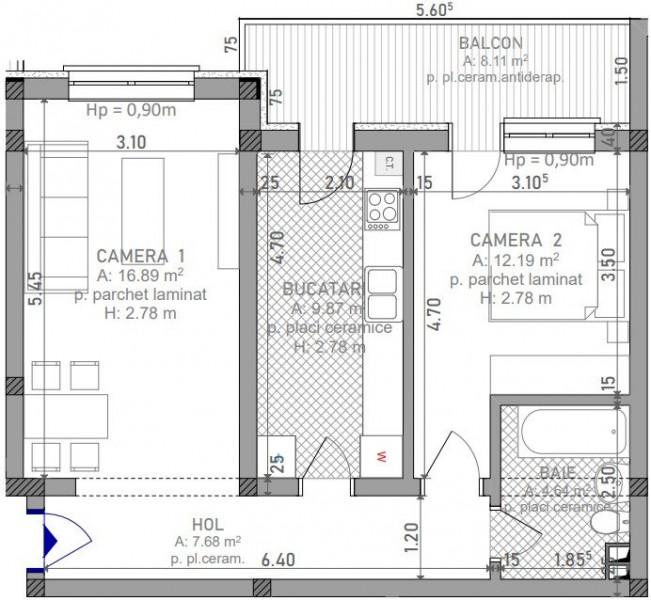
Deventer 2 este amplasat in apropierea Lacului lui Binder, intr-o zona rezidentiala linisitita, cu spatii verzi, aerisite si locuri de parcare create pentru fiecare apartaemnt in parte. In materie de apartamente, acestea sunt proiectate in urma unor cercetari facute in timp, si pe baza feedback-ului oamenilor, astfel incat sa se beneficieze de fiecare centimentru patrat al apartamentului. Pornind de la apartamente cu 2 camere si pana la apartamente cu 4 camere si 2 bai, acestea vor oferi maximul de confort adaptat nevoielor.
x