




Smart Imobiliare va propune spre vanzare cu comision 0, un spatiu comercial ideal pentru afacerea dumneavoastra.
Spatiul este situat in prima parte a strazii Calea Surii Mici, o zona nou dezvoltata.
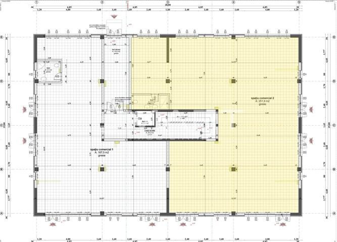
Are o suprafata de 229mp utili, si o baie separata. Are 4 usi de acces in intergul spatiu, una prin fata, doua pe laterala si una prin spatele imobilului.
Se vinde la alb si cu 3 locuri de paracare incluse, iar disponibilitatea acestuia este imediata!
Pentru detalii suplimentare si vizionari, precizati ca ati vazut anuntul cu ID: P17653
Prețul de promovare este de 289.000€ + TVA /negociabil în funcție de condițiile stabilite împreună cu proprietarul. Pentru mai multe detalii despre această proprietate și pentru programarea unei vizionări, vă rugăm să contactați consultantul responsabil. Smart Imobiliare vă oferă consultanță completă pe tot parcursul tranzacției, de la prima vizită și până la predarea cheilor.