







Smart imobiliare vinde casa situata intr-un cartier nou din Sura Mica.
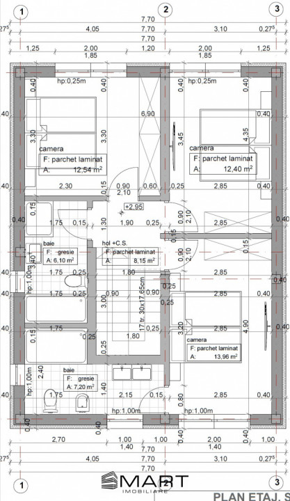
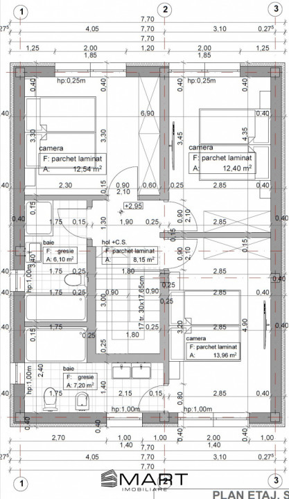
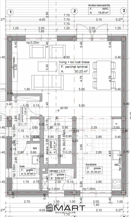
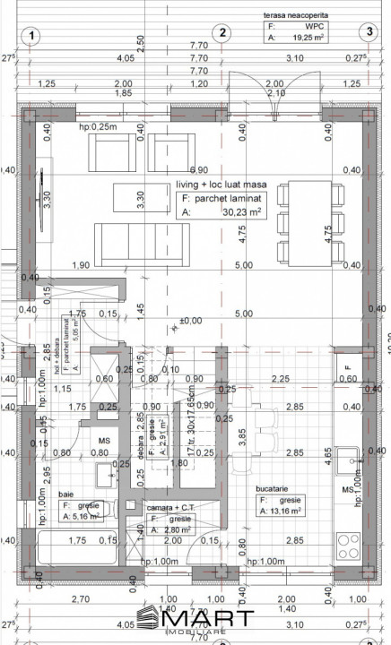
Casa dispune de un teren de 480mp, din care 400 liberi. Suprafafa utila este de 120mp dispusi pe 2 niveluri, parter si etaj.
Parterul este compus din hol la intrare, living spatios cu iesire pe terasa exterioara, bucatarie ce poate fi inchisa, camara, spatiu depozitare sub scari si baie. La etaj dispune de hol, baie si 3 dormitoare, din care unul cu baie proprie.
Predarea se face in vara anului 2026, la stadiul de ALB la interior si cheie exterior si conectata la toate utilitatiile cu centrala proprie cu incalzire in pardoseala.
Pentru detalii suplimentare, precizati ca ati vazut anuntul cu ID: P17809